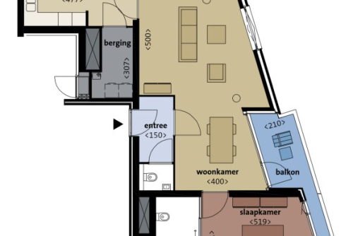
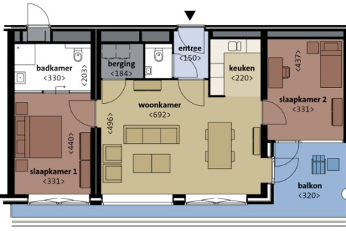
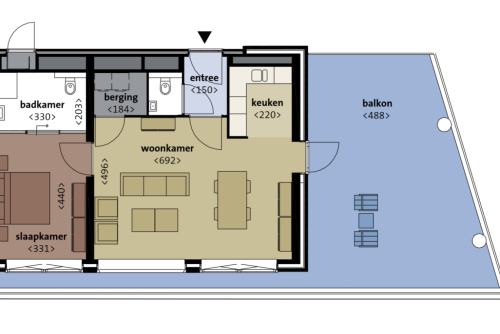
Comfortabel en ruim
U heeft bij Vredenbergh keuze uit twee- en driekamerappartementen die variรซren van 66 tot 102 vierkante meter. Al onze appartementen zijn ruim opgezet en van vele gemakken voorzien, zodat u ook in een rolstoel u zich er prima kunt redden. Zo kent elk appartement een moderne (open) keuken, apart een toilet, een ruime douche en toegang tot een balkon. Beschikt u over een auto dan kunt u deze kwijt in onze eigen parkeergarage. Hier staat uw auto veilig en beschermd.
Er is ook altijd ruimte om vrienden en familie te ontvangen en te laten logeren. Dat kan in uw eigen appartement, maar u kunt hiervoor ook gebruik maken van รฉรฉn van de twee gastensuites.
Wilt u weten welke appartementen er op dit moment beschikbaar zijn of meer informatie over de prijzen? Neemt u dan contact met ons op via 076-523 12 55. Wij vertellen u graag wat de mogelijkheden zijn.
Download hier de brochure van onze gastensuites.
Op het terrein van Vredenbergh, vindt u ook appartementen die verhuurd worden door Vesteda. Wilt u meer weten over dit project, genaamd Nieuw Vredenbergh, kijk dan hierย voor een kijkje op hun website.

Plattegronden serviceappartementen
Vredenbergh kent 19 verschillende typen serviceappartementen. Klik hier voor meer informatie over deze appartementtypes. Hieronder vindt u de plattegronden van elk appartementtype.



